
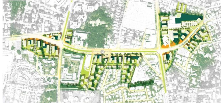
Mérignac, France Urbanisme
Mérignac
-
Category
Urbanisme -
Program
Pre-operational urban study and support for real estate projects as part of the “50,000 homes around transport routes” project
-
Area
30 hectares
-
Mission / Phases
Establishment of an overall urban strategy, development of a development project, production of the urban, architectural, landscape and environmental guidelines, participation in consultation and communication meetings, support for real estate projects
-
MOA
La FAB de la CUB
-
MOE
SATHY | Debarre Duplantiers Associés (mandataire) | Verdi Ingénierie | Transmobilité
-
Budget
N.C.
-
Planning
2015 – 2017

