
Vaulx-en-Velin, France Architecture
Immeuble de bureaux, Quartier Cœur de Soie
Bureaux
Tertaire
-
Catégorie
Architecture -
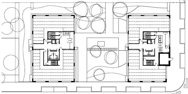
Programme
Immeubles de bureaux
-
Surface
5 200 m2 SDP
-
Mission / Phases
Conception et suivi architectural
-
MOA
Bouwfonds Marignan Immobilier
-
MOE
SATHY | Hors Champs | BE Martin | Katene | Etamine
-
Budget
7 500 000 €
-
Calendrier
2015



