
Toulouse, France Urbanisme
ZAC Saint-Martin-du-Touch
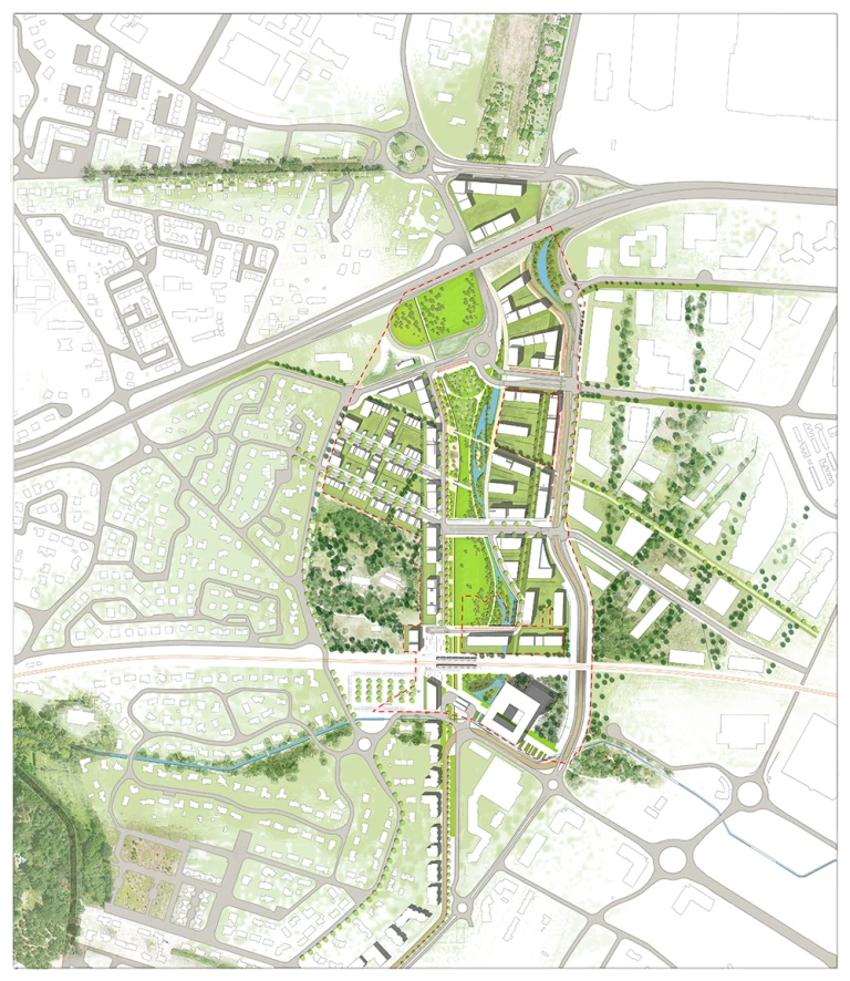
Intégré dans un périmètre de réflexion de 400 ha, le secteur opérationnel couvre 50 ha aujourd’hui considérés comme des dents creuses dans l’aire urbaine. Le projet de la ZAC Saint-Martin-du-Touch vise à redonner une cohérence d’ensemble à un territoire fortement transformé à la fin du XXème siècle, marqué par des limites fortes, un morcellement et des situations d’enclavement. L’enjeu est de créer une nouvelle articulation urbaine réunissant ces entités disparates tout en valorisant leurs atouts paysagers, économiques et de desserte.
Notre approche repose sur le croisement de deux trames : une trame paysagère structurée par le Touch, et une trame de mobilités douces orientée vers les gares. La trame paysagère valorise les chênaies existantes via des continuités inter-lots favorisant la ventilation et la lutte contre les îlots de chaleur. Un parc central équipé (aires de jeux, pergola, espaces de détente) constitue un cœur d’usage. Le lien avec le Touch est aussi valorisé avec une requalification des espaces sportifs du parc des bord du Touch et la mise en place d’une nouvelle traversée piétonne entre les 2 rives.
Les nouvelles voiries et le mail central, orientés vers la gare, sont conçus comme des espaces plantés intégrant noues, larges trottoirs et pistes cyclables pour encourager la mobilité active. Un travail précis sur l’épannelage, les alignements et les retraits crée des respirations et des continuités visuelles, tout en favorisant des opérations biosourcées et de haute qualité d’usage.
L’ensemble du quartier a obtenu la certification HQE Aménagement.
-
Catégorie
Urbanisme -
Programme
Définition d’un schéma directeur pour le grand secteur Saint Martin du Touch/Ramassiers et de conception/maîtrise d'oeuvre et urbaniste coordinateur pour les 2 quartiers de la halte Saint Martin et halte des Ramassiers
-
Surface
50 hectares (secteur opérationnel)
200 hectares (secteur d’études) -
Mission / Phases
Accord cadre comprenant un Plan Guide, Cahier des orientations urbaines, architecturales et paysagères, Fiches de lot, Coordination et suivi architectural, Maîtrise d’œuvre des espaces publics, Concertation
-
MOA
OPPIDEA, Toulouse Métropole
-
MOE
SATHY (mandataire) | COT | ARCADIS
-
Budget
45 000 000 €
-
Calendrier
2012 – 2025 -
Calendrier
2012 - en cours








